PLAN AND DESIGN

If you are about to embark on a new dirty utility room project, there are a few steps to consider along the way. As any healthcare worker knows, a well-planned sluice room approach reduces the risk of infection but can also mean major cost savings for the hospital or aged care facility.
STEP 1: THE BRIEF
The design of a new pan room starts with the “Brief”. The brief is a masterplan document, usually written in collaboration with a consultant. The brief outlines the high level of requirements of the facility to maintain good hygiene routines, and must include the following requirements;
Number of beds the DUR will be servicing
- Quantity and range of Reusable Medical Devices (RMD) required to be cleaned and disinfected
- Preferred location of the DUR workflow within the site
- Occupational Health & Safety
- Current BCA Regulations
- Australian and ISO Standards for reprocessing RMD. (AS/NZS 4187:2014 & ISO 15883)
- Understanding A0 Value Disinfection and Thermal Validation requirements
- Understanding of AusHFG guidelines
STEP 2: SIMPLIFIED DESIGN
The most important aspect of a soiled utility room is that each working zone delivers a smooth and efficient but hygienic flow. Plan these areas to reduce the level of double handling and/or infection control. Four areas of a well-planned DUR contain the following:
SOILED AREA →
You need to allocate an area for soiled goods which has no impact on the clean areas of the utility room.
BEDPAN WASHER & DISINFECTOR →
The pan flusher-disinfector or pan washer-disinfector should take up a small footprint of the utility room and be capable of cleaning and disinfecting bedpans, urine bottles and toilet buckets, without any further handling from the staff to reduce cross contamination.
HAND WASHBASIN →
Easy to access, one of the most important placement is the hand wash sink. It should be close to the entrance.
CLEAN STORAGE AREA
When you are finished cleaning and disinfecting your bedpans, urine bottles, toilet buckets etc, you need a space where these can be stored away from any soiled areas of the utility room.
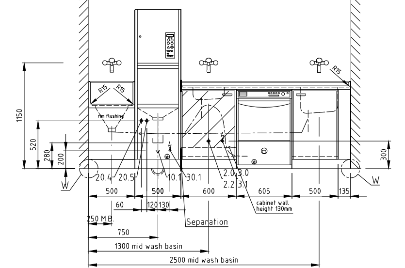
STEP 3: DESIGN DEVELOPMENT
Once you have designed the DUR, you will then need to ask an equipment manufacturer like MEIKO or an architect to provide you with detailed CAD drawings. These drawings will be critical in helping builders or tradesmen know where electrical distribution boards should be placed, plumbing requirements, gas lines and waste systems. This stage is also very important if you have decided on the equipment, appliances and benching you will use.
EQUIPMENT INNOVATION
Factors in choosing the right equipment or appliances will be determined by you, but you will need to comply with the Australian Health Standards. The second step is to research the latest innovations and features, which really help to save costs on chemicals, water and energy consumption as well as preventative maintenance.
Why you might choose to work with MEIKO?
We are a leading manufacturer of healthcare products that assist you in cleaning and disinfection. Our washer-disinfectors are used all around the world. We offer flexibility, whether mounted on the wall or floor as a standalone unit or incorporated as part of a fully fitted utility room.
We also help customers that simply come to us with a blank room. We discuss your requirements, present a detailed CAD drawing with concept illustration. The reason our customers love our combined care units is down to 3 major factors:
- It was a wall to wall solution, perfect hygienic result as shelves and surfaces are covered, no gaps and joins where bacteria can accumulate.
- All equipment is serviced from the front and only needs to be serviced every 5,000 cycles
- MEIKO support the trades on site, all parties signed off on final drawings, and we train nursing, cleaners and maintenance staff once operational.
Our TopLine equipment makes resounding sense from every perspective: perfect cleanliness, a sparkling shine, and easy on the wallet.
WANT PROOF? HEAR FROM ONE OF OUR NSW CUSTOMERS
Recently we completed 2 dirty utility rooms for Windermere Aged Care in NSW. If you would like details about this project click the image.






